Riglos 745
CABALLITO – CABA
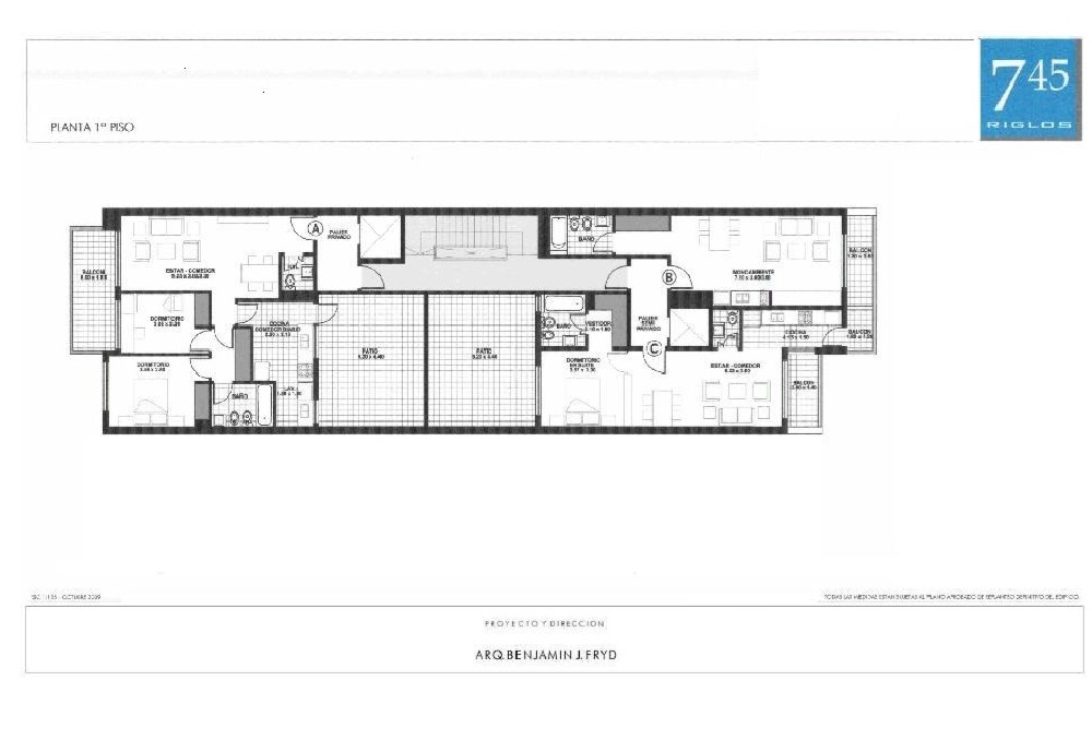
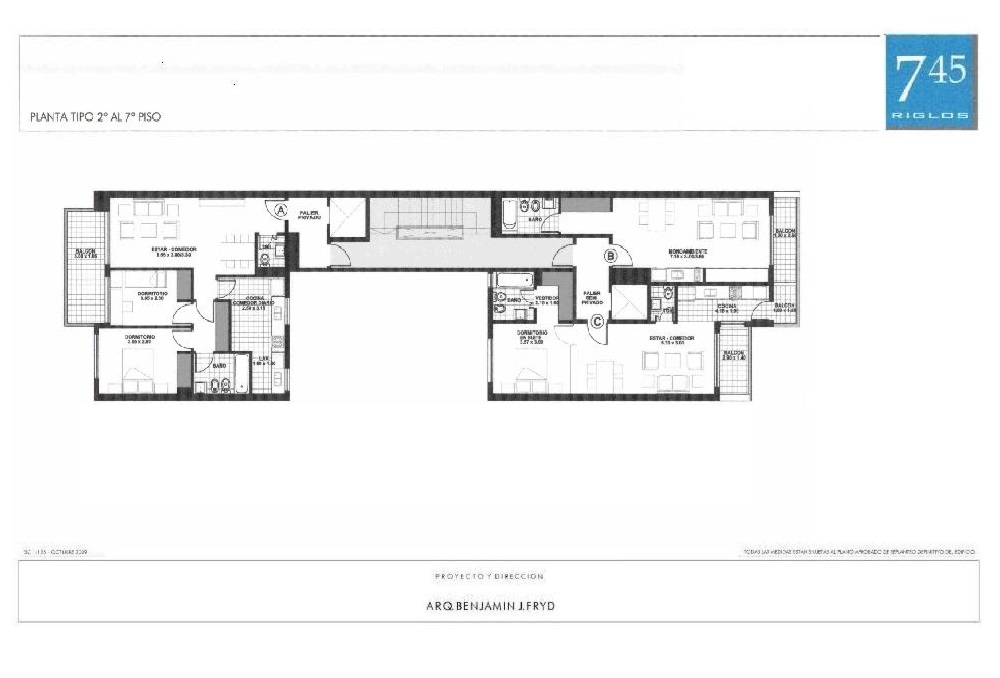
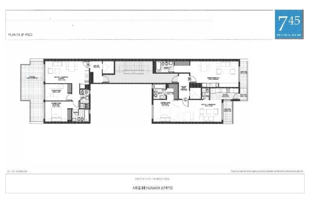
Este edificio, de 9 pisos cuenta con 26 unidades funcionales todas ellas con balcón y excelente luminosidad.
La disposición es de 3 unidades por piso de 1,2 y 3 ambientes aptos para vivienda o uso
profesional. Las unidades de 3 ambientes tienen acceso con palier privado.
Los propietarios pueden disponer de cocheras.
El proyecto, ubicado en el barrio de caballito, se encuentra estratégicamente ubicado en un barrio residencial y a pocas cuadras de varios medios de transporte público y buenos accesos a la red de tránsito.
Trabajos preliminares y de excavación
Estructura
Albañileria
Instalaciones
Yesería
Terminación
Estructura La estructura resistente del edificio se ejecutará en hormigón armado cumpliendo con las reglamentaciones vigentes.
Mampostería Todos los muros y tabiques divisorios y linderos se construyen con ladrillos huecos y/o macizos, de acuerdo a las necesidades resistentes y/o funcionales de cada caso a fin de obtener el mayor aislamiento termo acústico.
Revoques Todo el sector destinado a garaje y la caja de escalera se tratarán con enlucidos de cemento. Los parámetros interiores de las unidades se ejecutarán con enlucidos de yeso proyectado, al igual que los cielorrasos, previéndose la unión de ambos mediante una buña. Cielorrasos armados en baños, cocinas y pasos, en durlock. Todas las aristas verticales recibirán cantoneras metálicas.
Cubiertas Todas las cubiertas transitables del edificio en azoteas y terrazas se ejecutarán con techados aplicados en caliente protegidos con un solado de losetas cerámicas. Las terrazas y balcones correspondientes a unidades funcionales serán revestidas en cerámicos esmaltados 30×30 o similar.
Subsuelo El subsuelo incluye depósitos para usos comunes, salas de medidores de gas y electricidad y tranques de bombeo.
Revestimientos Los baños recibirán hasta la altura del cielorraso cerámicas esmaltadas primera selección de 30×30 con guardas decoradas al tono. Las cocinas recibirán en todos sus parámetros hasta altura de cielorrasos cerámicos esmaltados de primera selección de 20×20. El exterior del edificio será de revoques símil hormigón visto pintado y/ ladrillos comunes para vista colocados con junta tomada.
Solados Los correspondientes al sector garaje serán de cemento pigmentado, aislado y rodillazo. Similar tratamiento recibirán las áreas correspondientes a servicios generales y escaleras. En cocinas y balcones se colocarán cerámicas esmaltadas de primera selección de 30×30 o similar. Los solados de los baños serán cerámicos de primera selección de 30×30 o similar.
Carpintería metálica Las carpinterías exteriores se construirán a medida y sobre diseño exclusivo con marco en chapa DDBNG N°18 y hojas de aluminio pintado color blanco, línea Módena o similar. Los marcos interiores se construirán en chapa DDBNG N°18.
Carpintería de madera Todas las hojas de puertas de entrada e interiores serán del tipo denominado «placa», enchapadas en roble o similar, lustrado. Los herrajes serán de bronce platil. Las puertas de acceso a las unidades recibirán cerraduras de seguridad, mirillas opticas y pomo fijo. Los frentes corredizos de placard serán con guías inferiores y superiores de aluminio anodinado bronce o similar con hojas espejadas de 3mm con film de protección de seguridad o similar.
Artefactos/broncería Los artefactos sanitarios serán FERUM. Roca o similar, color blanco, al igual que todos los accesorios. Las griferías de baños y cocinas serán de la línea FV monocomando o similar. Las bachas de cocina y lavadero serán de acero inoxidable marca Johnson con griferías tipo monocomando FV 432 o similar.
Muebles de cocina Sobre y bajo mesada: con estructura de madera, puertas y estantes enchapados en laminado melamínico con sus respectivas cenefas y cornisas. Las puertas, serán provistas de bisagras retén. El artefacto cocina serán marca Domec. Longvie o similar de acero inoxidable.
Marmolería Las mesadas de cocina y lavadero serán de granito gris mora con zócalo del mismo material, o similar.- Las mesadas de baño serán de mármol, y vanitory en madera.
Pinturas Todos los sectores comunes del edificio serán tratados con pinturas sintéticas resistentes a tal fin. Los parámetros interiores de las unidades y los cielorrasos se pintarán con látex. La carpintería metálica será pintada con antióxido y esmalte sintético. Las carpinterías de madera serán lustradas con brillo medio mate, color natural, excepto las correspondientes a las áreas sanitarias y de servicio, que serán tratadas con barnices poliuretánicos. Todas las canalizaciones a la vista recibirán los colores reglamentarios.
Servicio contra incendios El edificio cumplirá con todas las normas y reglamentaciones vigentes en la materia, tanto en el aspecto constructivo como en lo referente a provisión de equipos de detección, matafuegos, mangueras, lanzas, etc.
Planta baja Será tratada arquitectónicamente. El hall de entrada será revestido con materiales nobles de primera calidad. El área de acceso descubierta será tratada paisajísticamente y con iluminación dirigida.
Fachadas El tratamiento exterior será conforme detalle arquitectónico con revoques símil hormigón visto pintado y ladrillo visto con junta tomada.
Balcones Ejecutados en hormigón armado a la vista pintado con barandas según detalle en tubos de hierro con terminación en esmalte sintético.
Instalación eléctrica La instalación se ejecutará en un todo de acuerdo a las reglamentaciones municipales vigentes.
Instalación termomecánica La calefacción será individual por Aire Acondicionado Frío/Calor. El agua caliente será central mediante termotanques de alta recuperación.
Instalación sanitaria/gas/incendio Se realizará de acuerdo a las normas establecidas por las reglamentaciones vigentes, con materiales aprobados y dimensiones acordes a la necesidad de cada caso. Las cañerías de desagüe primarios serán ejecutadas con caños y accesorios de Polipropileno sanitario aprobado del tipo Marrón, marca AWADUCT o equivalente. Todas las cañerías de distribución y las montantes de agua fría y caliente serán en Polipropileno aprobado del tipo termofusión, marca FUSION de los diámetros indicados en planos y exigidos por las reglamentaciones. Las cañerías de gas natural serán ejecutadas con caños de Hierro Negro con revestimiento Epoxi con costura aprobado del tipo serie liviana de ACINDAR y accesorios del mismo material.- Las cañerías de incendio serán de Hierro Galvanizado con costura aprobado.
Mampostería Todos los muros y tabiques divisorios y linderos se construyen con ladrillos huecos y/o macizos, de acuerdo a las necesidades resistentes y/o funcionales de cada caso a fin de obtener el mayor aislamiento termo acústico.
Revoques Todo el sector destinado a garaje y la caja de escalera se tratarán con enlucidos de cemento. Los parámetros interiores de las unidades se ejecutarán con enlucidos de yeso proyectado, al igual que los cielorrasos, previéndose la unión de ambos mediante una buña. Cielorrasos armados en baños, cocinas y pasos, en durlock. Todas las aristas verticales recibirán cantoneras metálicas.
Cubiertas Todas las cubiertas transitables del edificio en azoteas y terrazas se ejecutarán con techados aplicados en caliente protegidos con un solado de losetas cerámicas. Las terrazas y balcones correspondientes a unidades funcionales serán revestidas en cerámicos esmaltados 30×30 o similar.
Subsuelo El subsuelo incluye depósitos para usos comunes, salas de medidores de gas y electricidad y tranques de bombeo.
Revestimientos Los baños recibirán hasta la altura del cielorraso cerámicas esmaltadas primera selección de 30×30 con guardas decoradas al tono. Las cocinas recibirán en todos sus parámetros hasta altura de cielorrasos cerámicos esmaltados de primera selección de 20×20. El exterior del edificio será de revoques símil hormigón visto pintado y/ ladrillos comunes para vista colocados con junta tomada.
Solados Los correspondientes al sector garaje serán de cemento pigmentado, aislado y rodillazo. Similar tratamiento recibirán las áreas correspondientes a servicios generales y escaleras. En cocinas y balcones se colocarán cerámicas esmaltadas de primera selección de 30×30 o similar. Los solados de los baños serán cerámicos de primera selección de 30×30 o similar.
Carpintería metálica Las carpinterías exteriores se construirán a medida y sobre diseño exclusivo con marco en chapa DDBNG N°18 y hojas de aluminio pintado color blanco, línea Módena o similar. Los marcos interiores se construirán en chapa DDBNG N°18.
Carpintería de madera Todas las hojas de puertas de entrada e interiores serán del tipo denominado «placa», enchapadas en roble o similar, lustrado. Los herrajes serán de bronce platil. Las puertas de acceso a las unidades recibirán cerraduras de seguridad, mirillas opticas y pomo fijo. Los frentes corredizos de placard serán con guías inferiores y superiores de aluminio anodinado bronce o similar con hojas espejadas de 3mm con film de protección de seguridad o similar.
Artefactos/broncería Los artefactos sanitarios serán FERUM. Roca o similar, color blanco, al igual que todos los accesorios. Las griferías de baños y cocinas serán de la línea FV monocomando o similar. Las bachas de cocina y lavadero serán de acero inoxidable marca Johnson con griferías tipo monocomando FV 432 o similar.
Muebles de cocina Sobre y bajo mesada: con estructura de madera, puertas y estantes enchapados en laminado melamínico con sus respectivas cenefas y cornisas. Las puertas, serán provistas de bisagras retén. El artefacto cocina serán marca Domec. Longvie o similar de acero inoxidable.
Marmolería Las mesadas de cocina y lavadero serán de granito gris mora con zócalo del mismo material, o similar.- Las mesadas de baño serán de mármol, y vanitory en madera.
Pinturas Todos los sectores comunes del edificio serán tratados con pinturas sintéticas resistentes a tal fin. Los parámetros interiores de las unidades y los cielorrasos se pintarán con látex. La carpintería metálica será pintada con antióxido y esmalte sintético. Las carpinterías de madera serán lustradas con brillo medio mate, color natural, excepto las correspondientes a las áreas sanitarias y de servicio, que serán tratadas con barnices poliuretánicos. Todas las canalizaciones a la vista recibirán los colores reglamentarios.
Servicio contra incendios El edificio cumplirá con todas las normas y reglamentaciones vigentes en la materia, tanto en el aspecto constructivo como en lo referente a provisión de equipos de detección, matafuegos, mangueras, lanzas, etc.
Planta baja Será tratada arquitectónicamente. El hall de entrada será revestido con materiales nobles de primera calidad. El área de acceso descubierta será tratada paisajísticamente y con iluminación dirigida.
Fachadas El tratamiento exterior será conforme detalle arquitectónico con revoques símil hormigón visto pintado y ladrillo visto con junta tomada.
Balcones Ejecutados en hormigón armado a la vista pintado con barandas según detalle en tubos de hierro con terminación en esmalte sintético.
Instalación eléctrica La instalación se ejecutará en un todo de acuerdo a las reglamentaciones municipales vigentes.
Instalación termomecánica La calefacción será individual por Aire Acondicionado Frío/Calor. El agua caliente será central mediante termotanques de alta recuperación.
Instalación sanitaria/gas/incendio Se realizará de acuerdo a las normas establecidas por las reglamentaciones vigentes, con materiales aprobados y dimensiones acordes a la necesidad de cada caso. Las cañerías de desagüe primarios serán ejecutadas con caños y accesorios de Polipropileno sanitario aprobado del tipo Marrón, marca AWADUCT o equivalente. Todas las cañerías de distribución y las montantes de agua fría y caliente serán en Polipropileno aprobado del tipo termofusión, marca FUSION de los diámetros indicados en planos y exigidos por las reglamentaciones. Las cañerías de gas natural serán ejecutadas con caños de Hierro Negro con revestimiento Epoxi con costura aprobado del tipo serie liviana de ACINDAR y accesorios del mismo material.- Las cañerías de incendio serán de Hierro Galvanizado con costura aprobado.
¿Esta interesado en esta obra?
CONTACTENOS
Ante cualquier consulta, complete el siguiente formulario y nos comunicaremos a la brevedad







